豊中市緑丘1丁目 一戸建
価格
7,880
万円
種別
中古一戸建
間取
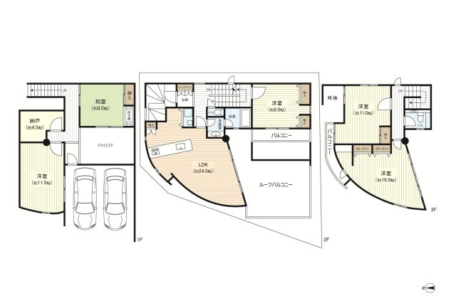
5LDK+1S(納戸)
建物面積
230.44㎡
住所
大阪府豊中市緑丘1丁目24-14
交通
少路駅
徒歩7分
担当者のコメント
倉内一郎
■内覧希望随時受付中です!!■
ご希望の日時をご連絡ください。住宅ローン、諸経費などもお気軽にご相談ください。
居間・リビング
ルーフバルコニーの有る5LDKのおうち♪ 車は2台駐車可能です
間取り
デザイナーズハウス♪ コンクリート打ちっぱなしの外観!5LDK+納戸+ガレージ(2台駐車可能)♪
居間・リビング
明るいLDKは約24帖♪
キッチン
温かみのある色調の大きなカウンターがある対面式キッチン♪
キッチン
会話を楽しみながら料理の出来るキッチンには窓も有換気も良好♪
バルコニー
LDからは広々としたルーフバルコニーに出る事が出来ます
バルコニー
ルーフバルコニーも日当たり良好♪
子供部屋
洋室 約8.0帖 (中2階部分)には 専用のバルコニーとしっかり収納できるクローゼットがあります♪
子供部屋
洋室 約11.0帖 (3階部分)
寝室
洋室 約11.0帖は2面開口で通風も良好♪
寝室
洋室 約16.0帖 (3階部分)
収納
洋室 約16.0帖にはおおきなクローゼットがあります♪
キッチン
3階部分の洗面&トイレ
洋室
1階には 洋室 約11.5帖と和室約8.0帖のお部屋があります♪
浴室
タイル張りでお洒落な浴室
洗面所
洗面室には便利な棚や窓があります♪
トイレ
手洗いボウルの有るトイレ
その他
角地に建つデザイナーズハウス♪ コンクリート打ちっぱなしのスタイリッシュなおうちです♪
外観
車は2台駐車可能です
その他
室内階段
洋室
納戸 約4.5帖が1階にあります♪
その他
ガレージへ直接出る事が出来ます。