アセントハウジング > 物件カタログ > 豊中市緑丘1丁目 一戸建 > 物件詳細
コンクリート打ちっぱなしの外観♪
敷地面積:178.57㎡に建つデザイナーズハウス!
閑静な住宅街の北西・北東道路に面する角地♪
【内覧希望随時受付中!お気軽にご連絡ください♪】
現地案内会
※写真や図と実際の現状とが異なる場合は現状を優先させていただきます。
画像をクリックして視点を操作











(※元利均等方式 金利5.00%まで ※返済年数5~50年まで入力できます)
(※ボーナスは年2回で計算しています。1000万円まで入力できます)
(※物件購入時、その他諸費用が発生する場合がございます)
| 所在地 | 大阪府豊中市緑丘1丁目24-14 | ||
|---|---|---|---|
| 交通 | |||
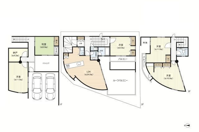
| 間取り/詳細 |
5LDK+1S(納戸)/ LDK 24.0帖 1室/和室 8.0帖 1室/洋室 11.5帖 1室/S 4.5帖 1室/洋室 8.0帖 1室/洋室 16.0帖 1室/洋室 11.0帖 1室 6LDK+納戸+ガレージ |
建物面積(坪数) | 230.44㎡(69.7坪) |
| 価格 | 7,880万円 | ||
| 駐車場/月額料金 | 有/- | ||
| 土地の敷金/保証金 | -/- | 借地料/借地期間 | -/- |
| 土地権利 | 所有権 | 土地面積(坪数) | 178.57㎡(54.01坪) |
| 傾斜地部分面積 | - | 路地状敷地 | - |
| 私道負担面積/セットバック | -/- | 高圧線下面積 | - |
| 地目/地勢 | 宅地/- | 接道状況 | 角地(北西 4.0m)(北東 6.0m) |
| 建ぺい率/容積率 | 40%/80% | 用途地域 | 第一種低層住居専用 |
| 都市計画 | 市街化区域 | 種別/構造 | 中古一戸建/木造 |
| 階建 | 3階建 | 築年月(築年数) | 1991年 12月 (築34年) |
| 総区画数/販売区画数 | 1区画/- | 向き | 西 |
| 現況 | 空家 | その他の法令上の制限 | 防火地域 |
| 取引態様/引渡時期 | 仲介/相談 | 建築確認番号 | - |
| 物件番号 | 98069572 | 取引条件の有効期限 | 2026年01月30日 |
| リフォーム |
2025年11月 壁 床 浴室リペア・ハウスクリーニング 等 2025年11月 バルコニー防水工事 等 |
||
| 設備条件 |
|
||
| 備考 |
◆立地について◆ 大阪モノレール本線『少路』駅より徒歩7分 閑静な住宅街 ◆お部屋・設備について◆ ・リフォーム済!(2025年11月) ・5LDK!全居室8.0帖以上 ・2台駐車可能な車庫が有ります♪ ・大きな納戸(約4.5帖)が有ります♪ ◆周辺環境◆ ・少路小学校/第十一中学校エリア ・閑静な住宅街ですが、徒歩10分圏内に学校・スーパー・病院なども揃い便利♪ |
||
| 取扱会社 |
|
||
| QRコード |
このQRコードを読み取ることで、スマホでも物件情報を確認できます。 |
||
※地図上に表示される物件の位置は付近住所に所在することを表すものであり、実際の物件所在地とは異なる場合がございます。
豊中市緑丘1丁目 一戸建に関するこだわり条件から探す
豊中市の町名から探す
豊中市にある駅から探す
豊中市緑丘1丁目 一戸建周辺の駅から探す