アセントハウジング > 物件カタログ > 平野区平野宮町2丁目 戸建 > 物件詳細
室内改装済(2025年9月)
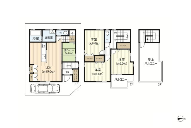
4LDK+カーポート♪
広々とした屋上バルコニーがある一戸建です
【内覧希望随時受付中!お気軽にご連絡ください♪】
現地案内会
※写真や図と実際の現状とが異なる場合は現状を優先させていただきます。
画像をクリックして視点を操作











(※元利均等方式 金利5.00%まで ※返済年数5~50年まで入力できます)
(※ボーナスは年2回で計算しています。1000万円まで入力できます)
(※物件購入時、その他諸費用が発生する場合がございます)
| 所在地 | 大阪府大阪市平野区平野宮町2丁目2-37 | ||
|---|---|---|---|
| 交通 | |||
| 間取り/詳細 |
4LDK/ LDK 15.0帖 1室/和室 3.0帖 1室/洋室 6.5帖 1室/洋室 6.0帖 2室 |
建物面積(坪数) | 90.96㎡(27.51坪) |
| 価格 | 3,780万円 | ||
| 駐車場/月額料金 | (屋根有)/- | ||
| 土地の敷金/保証金 | -/- | 借地料/借地期間 | -/- |
| 土地権利 | 所有権 | 土地面積(坪数) | 80.03㎡(24.20坪) |
| 傾斜地部分面積 | - | 路地状敷地 | - |
| 私道負担面積/セットバック | -/- | 高圧線下面積 | - |
| 地目/地勢 | 宅地/平坦 | 接道状況 | 角地(北東 私道 5.0m)(北西 私道 5.0m) |
| 建ぺい率/容積率 | 80%/200% | 用途地域 | 第一種住居 |
| 都市計画 | 市街化区域 | 種別/構造 | 中古一戸建/木造 |
| 階建 | 2階建 | 築年月(築年数) | 2013年 5月 (築12年) |
| 総区画数/販売区画数 | 1区画/- | 向き | 東 |
| 現況 | 空家 | その他の法令上の制限 | 準防火地域 |
| 取引態様/引渡時期 | 専任媒介/即時 | 建築確認番号 | - |
| 物件番号 | 98179317 | 取引条件の有効期限 | 2025年11月25日 |
| リフォーム |
2025年9月 クロス・キッチン等 |
||
| 設備条件 |
|
||
| 備考 |
◆立地について◆ JR関西本線『平野』駅より徒歩8分 大阪メトロ谷町線『平野』駅よりとの15分 ◆お部屋・設備について◆ ・広々とした屋上バルコニーが有ります♪ ・大型宅配ボックスとカーポートが有ります♪ ・床暖房、浴室乾燥機などが付いています♪ ・しっかり収納できるシューズインクローゼットが有ります♪ ◆周辺環境◆ ・平野小学校/平野北中学校エリア ・閑静な住宅街。公園や小、中学校が近くファミリー様におすすめです♪ |
||
| 取扱会社 |
|
||
| QRコード |
このQRコードを読み取ることで、スマホでも物件情報を確認できます。 |
||
※地図上に表示される物件の位置は付近住所に所在することを表すものであり、実際の物件所在地とは異なる場合がございます。
平野区平野宮町2丁目 戸建に関するこだわり条件から探す
大阪市平野区以外の市区町村から探す
大阪市平野区の町名から探す